楼凤网论坛,快活林凤楼品茶论坛,五一风流论坛全国唯一官网查询,修车大队楼凤论坛官网

烟雾灭火系统安装时需要自备的材料

来源: 金鼎消防 发布日期: 2022.01.05 作者: 金鼎小编 编辑: 金鼎小编 浏览次数:

烟雾灭火系统是如今油罐灭火系统中应用较多的一种,在中石油、中石化等大型企业,均能看到他们的身影,在烟雾灭火系统安装时,有部分材料需要用户自行配备,主要自备材料如下表:

用户自备材料: 


ZWW5

ZWW10

ZWW12

横向导烟管(mm)

φ89×4-20无缝钢管

长度:D/2﹢110

φ108×4-20无缝钢管

长度:D/2﹢150

φ133×4-20无缝钢管

长度:D/2﹢100

竖向导烟管(mm)

φ89×4-20无缝

钢管,长度:H-1700

φ108×4-20无缝

钢管,长度:H-1980

φ133×4-20无缝

钢管,长度:H-2050

导火索套管(mm)

无缝钢管22×2.5

长度:H-2320

无缝钢管22×2.5

长度:H-2560

无缝钢管22×2.5

长度:H-2630

支撑杆(mm)

低压流体焊接管1″

长度:(D/2-500)×1.4×2件+横档2000×1件


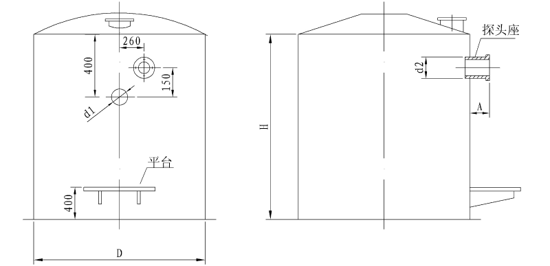
注:(1)、表中竖向导烟管和导火索套管为理论计算值,精确长度在安装时实测。

       (2)、D为储罐直径(mm),H为储罐罐缘至地面高度(mm)。

       (3)、为便于观察和安装,导烟管孔d1、探头座孔d2应尽可能设置在采光孔下方。

       (4)、将探头座部件焊接到罐壁d2孔内时,为保证两探头位于同一水平面,法兰上螺栓孔方位必须如图(一)所示。

       (5)、由d1的孔中心吊下铅锤找正平台中心,校准水平后按图(二)所示高度焊接。

烟雾灭火系统

图一


烟雾灭火系统

图二

咨询热线

400-178-2088
点击展开